- Tipo: Fincas y solares
- Operación Venta
-
Municipio: Cortes de Pallás
-
Población:Cortes de Pallas
-
Terraza: Sí
-
Metros: 132m2
-
Metros parcela: 167m2
-
Año de construcción: 1930
CaracterÃsticas
- Aire acondicionado: no
- Estado: Disponible
Detalles
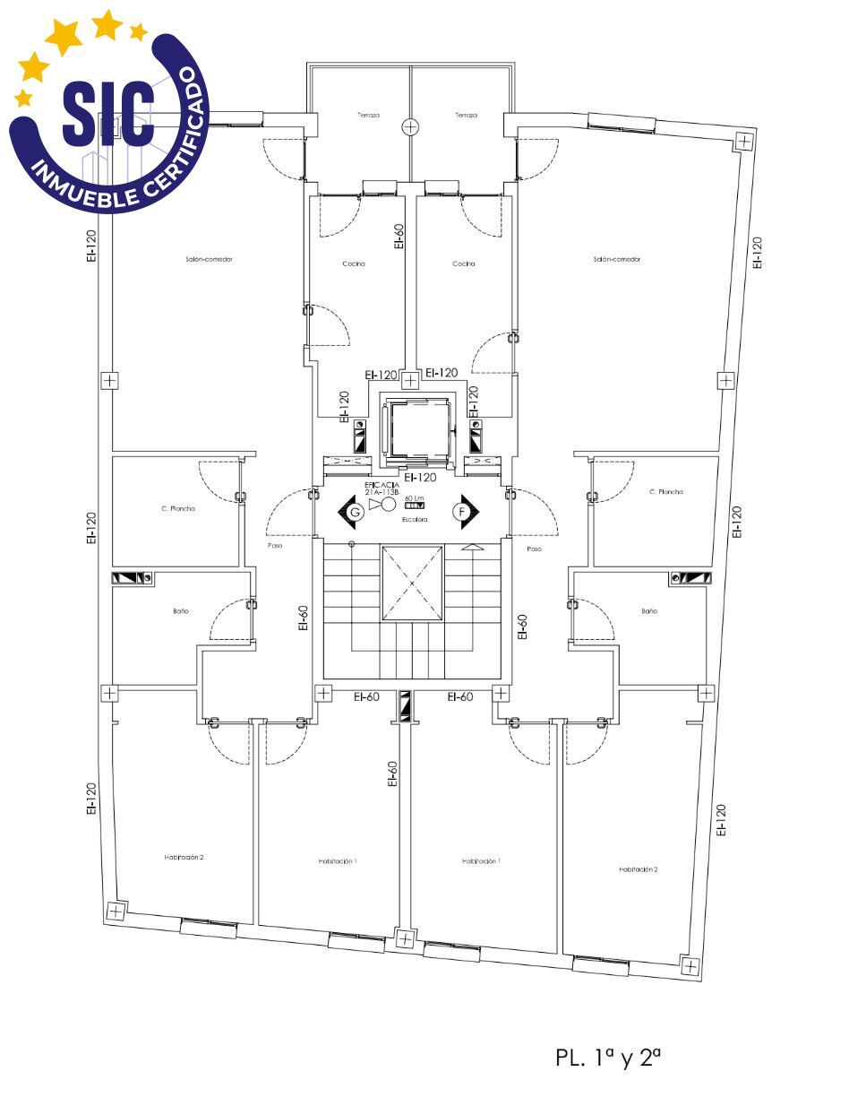
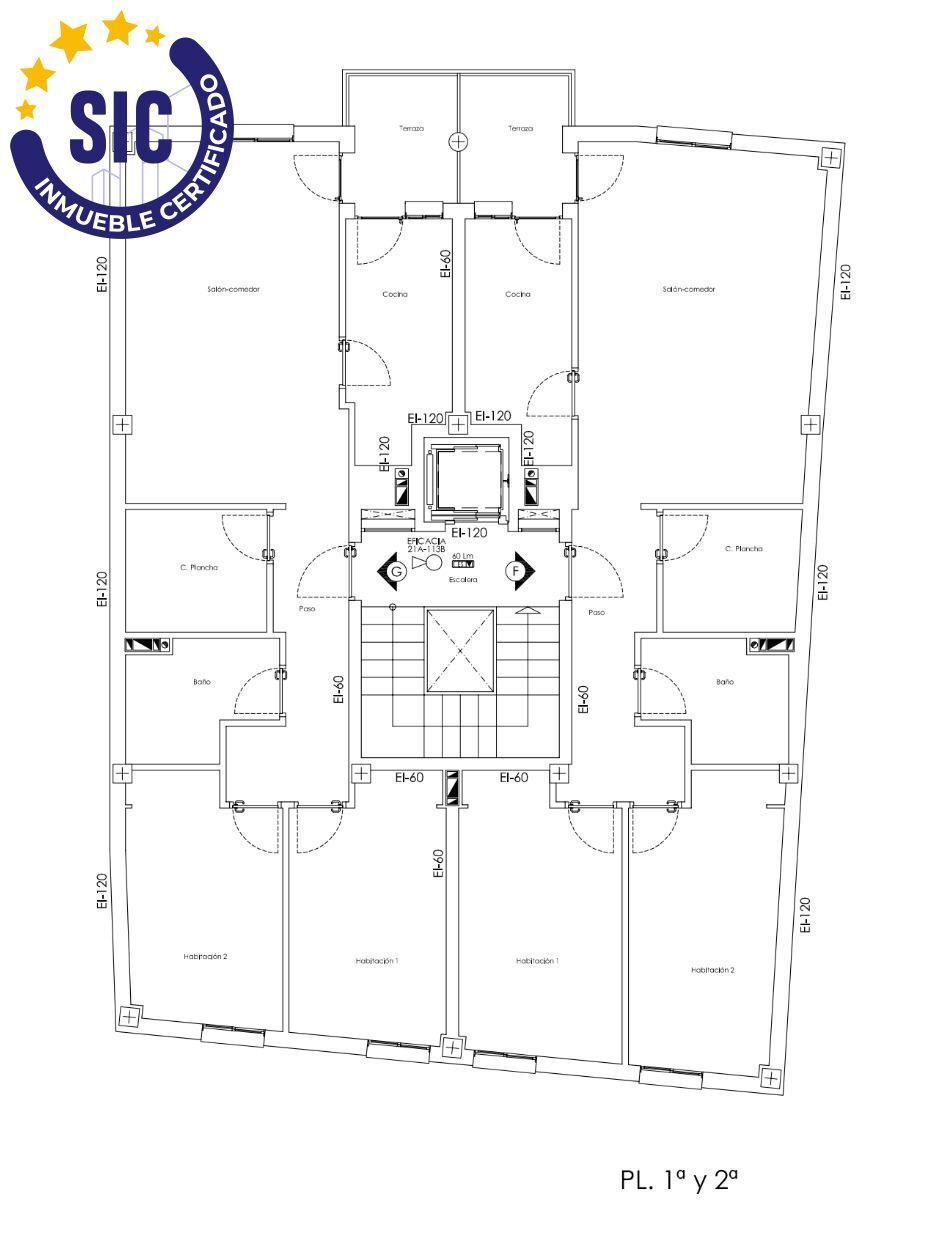
Terreno Urbano con Proyecto Básico en Venta ? Oportunidad de Inversión en Cortes de Pallás Se ofrece en exclusiva un terreno urbano de 167 m² situado en pleno núcleo urbano de Cortes de Pallás, una localidad en auge tanto por su atractivo turÃstico como por el creciente desarrollo de infraestructuras energéticas en la zona. El terreno se vende con un proyecto básico que contempla la construcción de un edificio con 9 viviendas y locales comerciales en planta baja. La edificación proyectada da frente a la plaza principal, donde la normativa urbanÃstica permite planta baja más dos alturas. Además, la fachada posterior del edificio da a un barranco, lo que ofrece la posibilidad de desarrollar niveles adicionales por debajo del nivel de acceso desde la plaza, incrementando asà la edificabilidad efectiva y el potencial de rendimiento de la promoción. CaracterÃsticas principales: ? Superficie del solar: 167 m². ? Proyecto básico incluido: 9 viviendas + locales comerciales. ? Frente a la plaza, con posibilidad de edificar PB + 2 alturas. ? Posibilidad de niveles adicionales en la fachada trasera (vistas al barranco). ? Zona con alta demanda de vivienda por turismo y trabajadores desplazados. ? Emplazamiento estratégico en entorno natural y con todos los servicios. Cortes de Pallás es una localidad con gran encanto natural, ideal para turismo rural, senderismo y actividades de montaña. La reciente implantación de proyectos energéticos está atrayendo a numerosos trabajadores a la zona, generando una demanda estable de alojamiento. Una oportunidad ideal para promotores e inversores que buscan un proyecto listo para desarrollar con alto potencial de rentabilidad tanto en alquiler turÃstico como residencial. La descripción del presente inmueble e imágenes tienen mero carácter informativo y en ningún caso carácter contractual, pudiendo ser modificados por la inmobiliaria comercializadora sin que ello implique responsabilidad alguna frente a terceros. En el precio de venta a público, esta propiedad NO incluye los gastos de adquisición (Notario, registro, gestión, honorarios, etc?).