CaracterÃsticas
- Aire acondicionado: no
- Estado: Disponible
Detalles
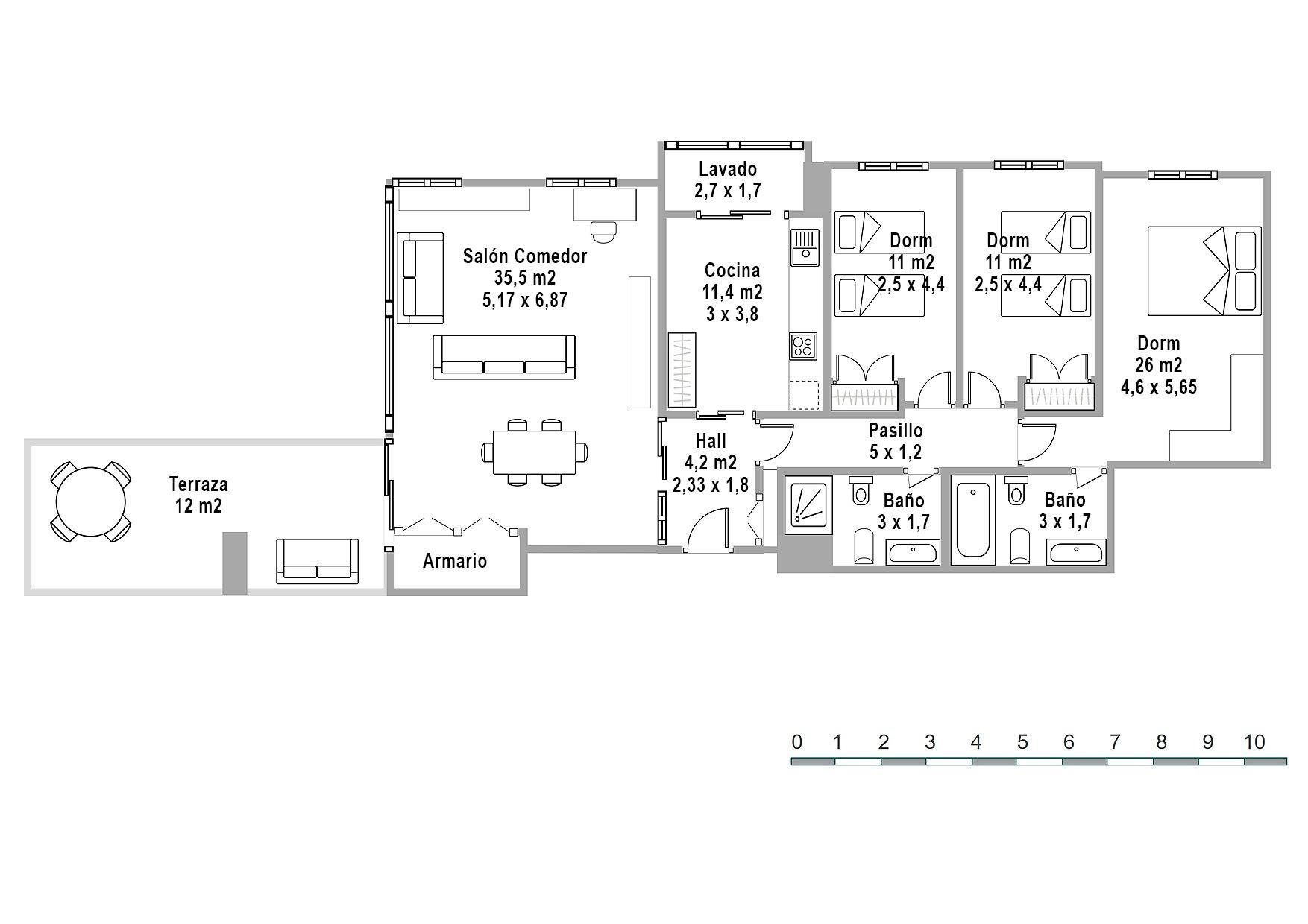
Esta ubicada en una 8va planta con ascensor, esta vivienda combina diseño moderno y confort. Dispone de 3 dormitorios y 2 baños completos, uno de ellos en suite. Desde el salón y la terraza se disfrutan vistas a la Serra Grossa, al Castillo de Santa Bárbara y, en el horizonte, al mar de la Playa de San Juan. La propiedad cuenta con 147 m² construidos y una terraza de 27 m² con suelo tipo deck de PVC. Los toldos de la orientación este son eléctricos, el resto persianas de PVC y toldos manuales. Todas las estancias son exteriores y luminosas, con vistas a las copas de los árboles del Parque Garbinet. Equipada con aire acondicionado frÃo/calor centralizado y calefacción a gas, incluye mejoras recientes de hace 2 años: instalación eléctrica renovada, ventanas Climalit y un baño completo. La vivienda se completa con doble plaza de garaje cómoda y trastero de 11 m². La urbanización ofrece ascensor, piscina, gimnasio, sauna, cancha de squash, salón de usos múltiples y parque infantil. Se entrega amueblada, con la opción de retirar el mobiliario si se prefiere. (Esta propiedad se ofrece sin gastos de comisión para el comprador)
