CaracterÃsticas
- Aire acondicionado: no
- Gastos comunidad: 35 €/Mes
- Orientación: Este
- Estado: Disponible
Detalles
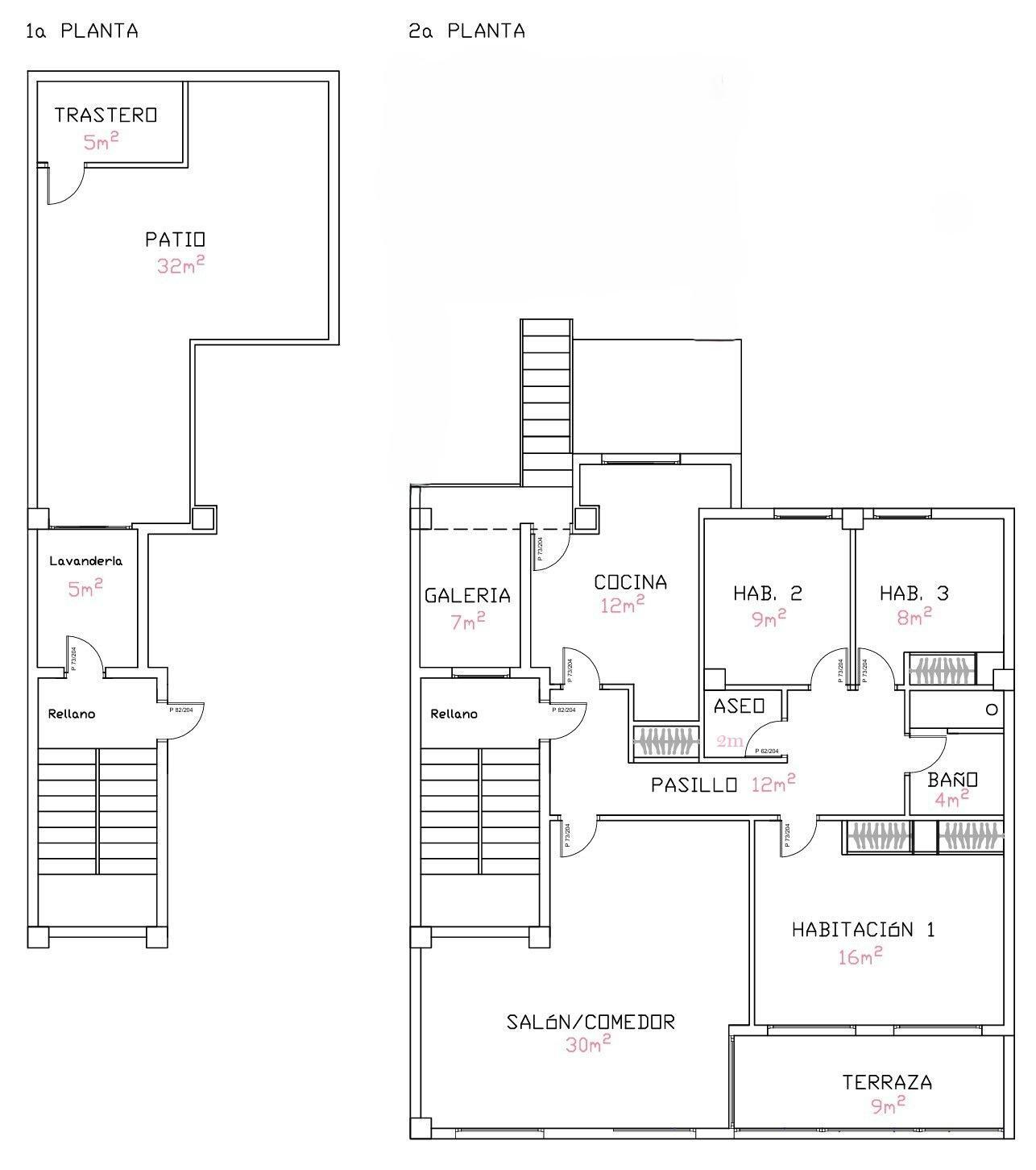
¿Buscas espacio real, la privacidad de una casa y la comodidad del centro? Bienvenido a tu nuevo hogar en una exclusiva finca de tan solo 3 viviendas. Te presentamos en EXCLUSIVA esta magnÃfica propiedad en la calle Doctor Nieto, una ubicación privilegiada junto al emblemático Mercado de Carolinas. Aquà disfrutarás de una combinación difÃcil de encontrar hoy en dÃa: la tranquilidad de tener un solo vecino por planta y la comodidad de vivir rodeado de servicios, a solo 15 minutos andando del centro y de la playa. Distribución única ? 151 m² de superficie total de uso: La propiedad se divide en dos espacios privativos, pensados para ofrecer comodidad, versatilidad e independencia: 1. Vivienda principal (2ª Planta sin ascensor - 117 m²): Amplitud y luz natural definen este espacio reformado y listo para entrar a vivir. ? Zona de dÃa: Gran salón-comedor de 30 m² con paredes lisas, conectado a un balcón acristalado (terraza) de 9 m² equipado con toldos para máximo confort. ? Zona de descanso: 3 dormitorios dobles muy espaciosos (dos de ellos con grandes armarios empotrados). ? Baños: Un baño completo y un aseo de cortesÃa con bidé. ? Cocina: Independiente, equipada con electrodomésticos Clase A+, ventanas de doble acristalamiento, con una práctica galerÃa de 7 m², con acceso directo al gran patio privativo. 2. Anexo privado y zona de ocio (1ª Planta): Aquà reside la magia y el valor diferencial de esta vivienda. Este espacio privado cuenta con doble acceso, desde la galerÃa de la vivienda principal y también desde el rellano de la escalera de la 1ª Planta, lo que aporta comodidad, versatilidad e independencia. Incluye: ? Gran patio de 32 m² de uso exclusivo. ? Zona de lavanderÃa (5 m²) y amplio trastero (5 m²). ? La Gran Ventaja: Al tener entrada directa también desde el rellano, puedes guardar bicicletas, artÃculos de playa o usarlo como taller/zona de juegos sin necesidad de ensuciar o cruzar la vivienda principal. ¡Independencia total! CALIDADES Y CONFORT: La vivienda se vende semi-amueblada y con una reforma pensada para la eficiencia y el bienestar: ? Climatización: Aire acondicionado y calefacción por conductos en toda la casa. ? Aislamiento y confort: Ventanas de aluminio con doble acristalamiento y mosquiteras en todas las estancias, además de toldos instalados en salón y balcón. ? Acabados de calidad: CarpinterÃa interior en roble macizo y suelos de terrazo, combinando estilo y durabilidad. OPCIONAL: Existe la posibilidad de adquirir plaza de garaje y un segundo trastero en edificio anexo (no incluidos en el precio), completando asà una vivienda práctica y funcional en todos los sentidos. Si valoras la tranquilidad de una comunidad pequeña (solo 3 vecinos), necesitas metros reales y deseas un espacio exterior privado con acceso independiente para tus hobbies, esta es tu casa. Espacios amplios, privacidad y calidades premium en una ubicación estratégica de Alicante y con todos los servicios a la mano. ¡Solicita tu visita y descubre la independencia que ofrece esta distribución única! INFORMACIÓN IMPORTANTE: El precio de venta no incluye impuestos, gastos de notarÃa y registro, ni los honorarios profesionales de RE/MAX INMOMAS, que corren a cargo de la parte compradora.